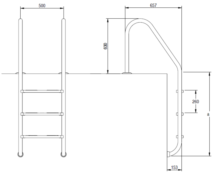
Ljestve FLEXINOX s 4 gazišta INOX 316, s protukliznom gumom na gazištu

Flexinox ljestve za bazen – AISI 316L elektropolirane

Kat. broj: 87111944 

Flexinox ljestve za bazene izrađene su od vrhunskog nehrđajućeg čelika AISI 316L, što ih čini otpornima za primjenu na bazenima s elektrolizom i izuzetno izdržljivima na sve fizičke i kemijske utjecaje.

525,44 €
525,44 € / 1 kom.

Ključne karakteristike:

  • Materijal: Nehrđajući čelik AISI 316L, elektropolirani završni sloj
  • Kompatibilnost: Pogodno za bazene koji koriste elektrolizu
  • Otpornost: Povećana otpornost na oksidaciju i agresivne kemikalije
  • Uključeno u paketu: Obloge, ankeri za ugradnju, Čepovi, Potpuno neklizajuće stepenice
  • Montaža: Ugradni ankeri omogućuju čvrstu montažu s mogućnošću jednostavne demontaže bez gubitka stabilnosti
  • Namjena: Idealne za betonske bazene


Preporuka za održavanje:
Za dugotrajan sjaj i otpornost preporučuje se redovita upotreba sredstva za čišćenje nehrđajućeg čelika.